4738 S Atlantic AvenuePonce Inlet, FL 32127Price: $1,649,990

  • Price: $1,649,990
  • Est. Mortgage of $/month
  • 44 Days on Market
$
$
%
$/month over payments
Federal 30-year interest rate: 6.19% last updated on Dec 4, 2025
* All Figures are estimates. Check with your bank or proposed mortgage company for actual interest rates.
This product uses the FRED® API but is not endorsed or certified by the Federal Reserve Bank of St. Louis.
  • $1,649,990List Price
  • 4Bedrooms
  • 4Full Bath
  • 3,800Square Feet
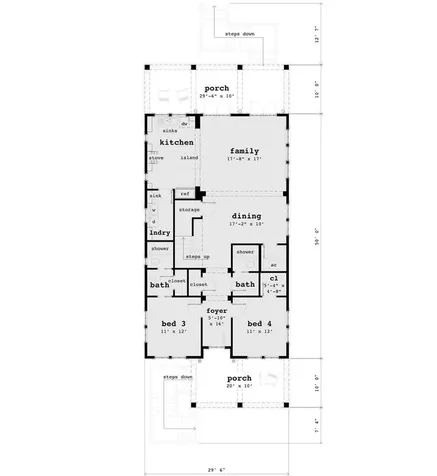
Introducing a brand-new luxury coastal home coming soon to 4738 S Atlantic Ave in beautiful Ponce Inlet! Perfectly positioned on one of the highest elevations in the area and directly across from the beach walkover, this home will feature stunning, unobstructed ocean views right over the dunes - the perfect backdrop for your morning coffee or evening sunset. Designed and built with premium upgrades, the highest level of craftsmanship, and exceptional attention to detail, the residence will include a corrugated metal roof, private pool, and elegant coastal finishes throughout. Buyers have a rare opportunity to get in early while construction is underway and customize the home to their exact preferences - from interior finishes to outdoor living features. Enjoy the best of Ponce Inlet living with direct beach access, peaceful surroundings, and a true small-town coastal feel. With its superior build quality, modern design, and breathtaking views, 4738 S Atlantic Ave will be the ultimate

Property Details of 4738 S Atlantic Avenue

Property Details

Never Miss New Listings

Never miss new listings between $1,485,000 - $1,815,000 in this neighborhood
Successfully Subscribed!
Do not fill in this field:

I agree to receive marketing and customer service calls and text messages from Brian Hero. To opt out, you can reply 'stop' at any time or click the unsubscribe link in the emails. Consent is not a condition of purchase. Msg/data rates may apply. Msg frequency varies. Privacy Policy.

We will never spam you or sell your details. You can unsubscribe whenever you like.

Mortgage Calculator


$
$
%
Est. Mortgage:
$/month over payments
Federal 30-year interest rate: 6.19% last updated on Dec 4, 2025. * The above figures are estimates provided by Union Street Media using the FRED® API, and are not endorsed or certified by the Federal Reserve Bank of St. Louis. Check with your lender for actual interest rates.
Listed by John Galluzzo II of DJ & Lindsey Real Estate

Based on information submitted to St. Augustine & St. Johns County Board of Realtors as of December 6, 2025 7:46 PM EST. All data is deemed reliable but is not guaranteed accurate by the MLS. All information should be independently reviewed and verified for accuracy. IDX information is provided exclusively for consumers’ personal, noncommercial use and may not be used for any purpose other than to identify prospective properties consumers may be interested in purchasing.

Hi there! How can we help you?

Contact us using the form below or give us a call.

Send Us A Message:

I agree to receive marketing and customer service calls and text messages from Brian Hero. To opt out, you can reply 'stop' at any time or click the unsubscribe link in the emails. Consent is not a condition of purchase. Msg/data rates may apply. Msg frequency varies. Privacy Policy.

Do not fill in this field:

This site is protected by reCAPTCHA and the Google Privacy Policy and Terms of Service apply.